Periodismo de análisis y opinión de Ibagué y el Tolima

Actualidad

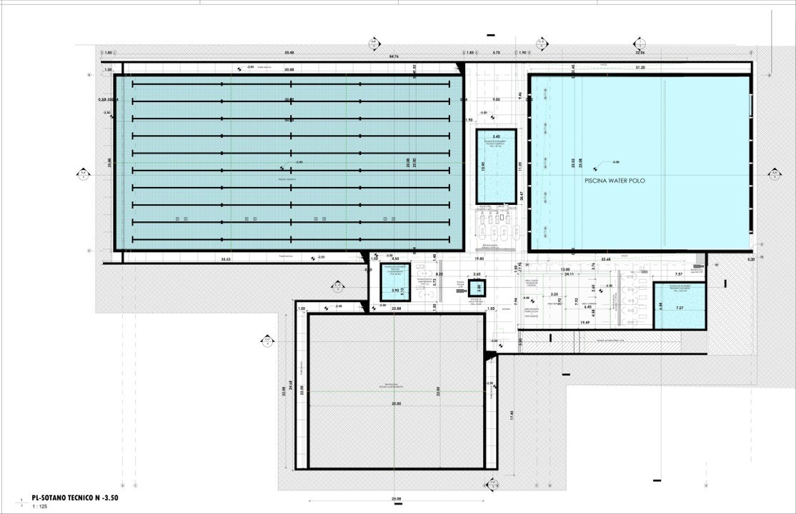
Complejo acuático no servirá para competencias internacionales

Complejo acuático no servirá para competencias internacionales

Diana Ximena Cepeda Rodríguez en el 2019 era la gerente del Instituto Municipal del Deporte y la Recreación de Ibagué, es licenciada de Educación Física de la universidad del Tolima, y conocedora en propiedad de todo lo proyectado a construir en materia de escenarios deportivos en la capital musical.

Dice en su muro:

Revisando el proceso del complejo acuático que se va a construir en el parque Deportivo de la ciudad de Ibagué me encontré algunos cambios en el diseño y el concepto de escenario de talla internacional; no lo veo claro a mi parecer… a simple vista nos están quitando la posibilidad de que Ibagué y el Tolima realice eventos internacionales como los que se han logrado hacer en el Patinodromo y el Estadio de Atletismo “de los que me siento orgullosa de haber ejecutado”. 

Es inevitable sentir un sin sabor y tristeza al ver qué éste esperado complejo no va a contar con la plataforma de clavados, toda vez que se va a reemplazar por una piscina para Polo acuático. 

No dudo que el Polo Acuático merezca su espacio exclusivo pues es una modalidad deportiva que nos ha dado muchas alegrías y medallas al Tolima en las diferentes categorías en que nos representan y en los juegos nacionales.

El ajuste del diseño original presentado en mi administración estipulaba una torre de clavados que fue quitada para la adjudicación de este proceso en el 2022. Si se revisan los planos nos damos cuenta que el vaso de la piscina que ahora se denomina para polo acuático va a mantener la misma profundidad del vaso inicialmente diseñada, solamente se quitan las plataformas de salto que perfectamente puede estar instaladas

Si el objetivo es contar con una piscina exclusiva para el polo acuático, el cambio del diseño debió enfocarse en la piscina denominada de “calentamiento” ajustando las medidas para que sea reglamentaria para la competencia de esta modalidad deportiva; de esta forma Ibagué tendría un complejo acuático soñado con piscinas para eventos internacionales en las diferentes modalidades de natación.

Los complejos acuáticos que he tenido la oportunidad de conocer y en los que se han realizado eventos de talla internacional como Juegos Bolivarianos de Santa Marta, Juegos Centroamericanos y del Caribe en Barranquilla, Juegos Panamericanos Junior de Cali cuentan con la torre de saltos ornamentales. 

Para ir un poco más allá, miremos las piscinas de Rio de Janeiro y Tokio en las ultimas 2 versiones de Juegos Olímpicos. Debemos pensar que Ibagué esta a la altura de las otras ciudades capitales y que podemos tener escenarios de primer nivel, solo es cuestión de voluntad y pasión.

Siguenos en WhatsApp

Artículos Relacionados